Pembuatan SPP LS Non-Kontraktual
SPP LS Kontraktual adalah Surat Permintaan Pembayaran yang dibayarkan kepada penyedia barang/jasa secara Non-Kontraktual yang sesuai pengadaan barang/jasa menggunakan Dasar Kuitansi/Invoice dari Pihak ke-3. Langkah pembuatan SPP LS Non-Kontraktual sebagai berikut:
Dalam sistem keuangan, langkah yang dilakukan pertama kali adalah menentukan kegiatan. Klik menu Transaksi → Kegiatan.
Kemudian isikan kegiatan yang akan dilakukan seperti terlihat pada form di bawah ini :

Akhiri dengan klik tombol Simpan.
Setelah kegiatan berhasil didaftarkan, user bisa mulai untuk menambahkan transaksi pada group menu Transaksi -> Keuangan -> Transaksi -> Tombol Tombol Keu Transaksi.

Isikan data transaksi ayang akan dibuat, contoh isian transaksi dapat dilihat pada gambar di bawah ini :

Akhiri dengan klik tombol Simpan.
Karena transaksi yang sudah dibuat adalah jenis transaksi dengan pajak, maka user perlu menambahkan nominal pajak pada setiap transaksi.

Isikan daftar pajak sesuai peraturan perundang-undangan mengenai perpajakan. Sebagai contoh dapat dilihat dalam gambar di bawah ini :

Langkah selanjutnya adala pembuatan SPPT. pada group menu Transaksi silahkan klik menu SPPT -> tombol Tambah SPPT. Perhatikan langkah 1 dan 2 pada gambar di bawah ini :

Pilih jenis SPP “LS Non Kotraktual”, Isikan semua data, dan akhiri dengan klik “Simpan”

Selanjutnya, melakukan pencetakan untuk berkas SPP LS non kontraktual. Caranya sama dengan langkah-langkah pencetakan seperti sebelumnya. Klik tombol “Transaksi”

Berikan tanda centang pada uraian berkas yang akan dicetak.

Setelah berhasil, silahkan lakukan Cetak SPP dan rincian belanja

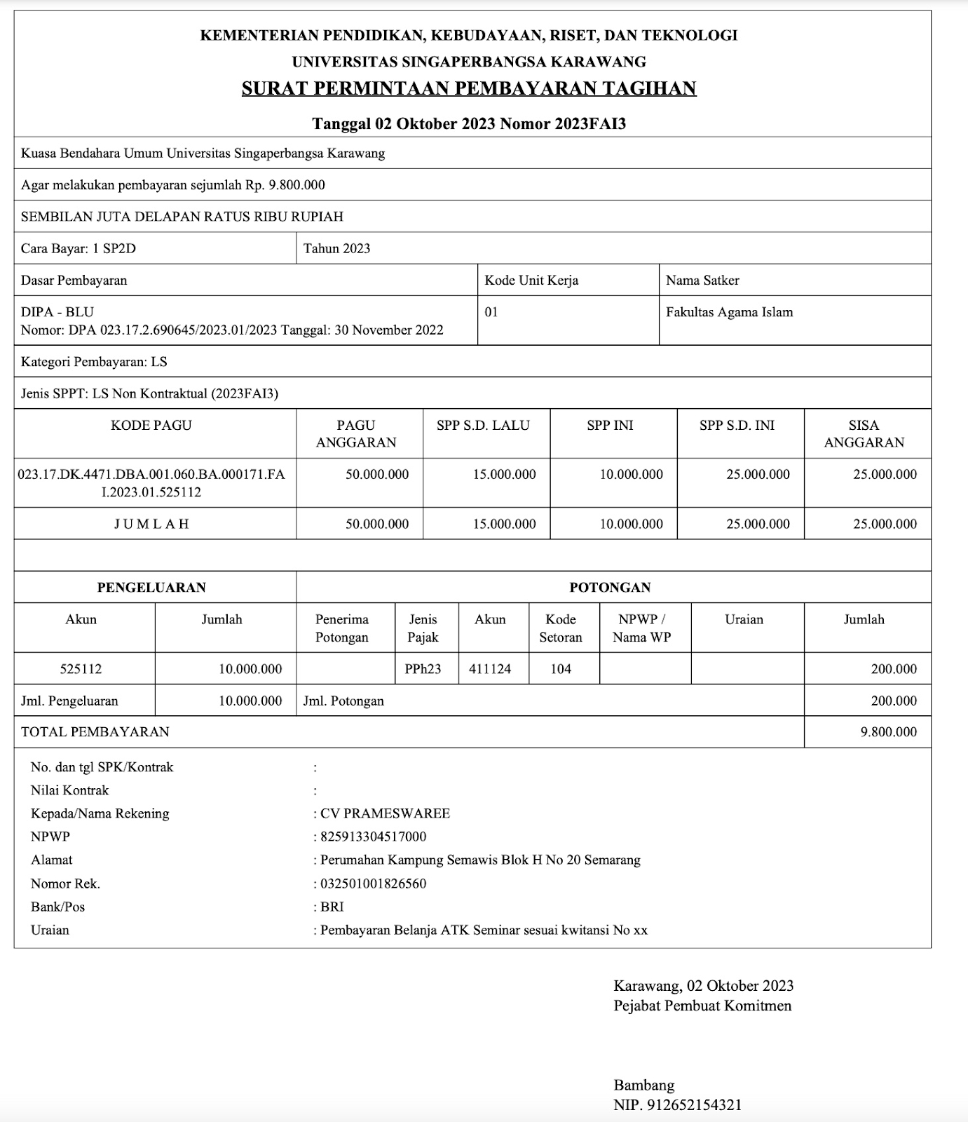
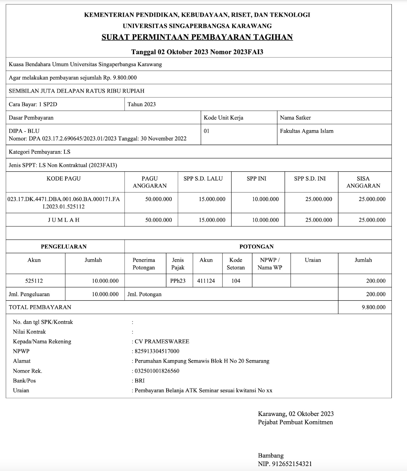
Contoh cetakan SPP LS Non Kontraktual

Contoh cetakan rincian untuk SPP LS Non kontraktual

Langkah selanjutnya adalah melakukan upload berkas dan kelengkapan SPP. Klik menu Aksi pilih Dokumen Lampiran

Dan lakukan hal yang sama untuk upload berkas Rincian atau dokumen lain yang dibutuhkan. Akhiri dengan tombol simpan.

Kembali ke menu transaksi untuk untuk mengajuakn SPP LS Non-Kontraktual.
Proses pengajuan SPP LS Non Kontraktual dari unit kerja telah selesai. Langkah selanjutnya adalah verifikasi pada Penguji (Keuangan pusat)
